Наружная реклама
Реклама на радио
Реклама на телевидении
Реклама в интернете и печатных СМИ
Реклама в помещениях
Реклама на/в транспорте
Изготовление рекламы
в Магадане
Фасад Медиа Групп – рекламно-производственная компания, оказывающая в Магадане и Магаданской области услуги по дизайнерской разработке интерьера фитнес-центра. Мы оказываем полный спектр услуг:
РПК «Фасад Медиа Групп» предлагает гибкие условия и выгодные цены по разработке интерьера фитнес-центра в Магадане и Магаданской области. Для получения коммерческого предложения по дизайну интерьера фитнес-центра в Магадане обращайтесь по телефону: 8 800 201-23-74 или оставьте заявку на сайте. Разработку интерьера фитнес-центра «под ключ» гарантируем!
Разработка интерьера фитнес-центра профессиональной дизайн-студией пользуется большим спросом среди представителей бизнеса. Востребованность данной услуги объясняется тем, что без качественного, профессионального интерьера фитнес-центра сложно произвести положительное впечатление на клиентов, а работники компании не могут выполнять возложенные на них обязанности со 100% эффективностью. Для того, чтобы произвести впечатление на посетителей и клиентов, необходимо профессионально подойти к разработке интерьера фитнес-центра. Можно сделать вывод, что без правильного, созданного по всем правилам интерьера фитнес-центра, не обойтись.
Что делать, если в штате компании нет собственного дизайнера? Необходимо обратиться в дизайн-студию «Фасад Медиа Групп». Многие клиенты нашей компании заказывают услугу по разработке интерьера фитнес-центра у нас.
Рекламно-производственная компания "Фасад Медиа Групп" занимается разработкой интерьера фитнес-центров «под ключ»:
Выбирая нашу компанию, вы получаете высокий уровень сервиса и разумные цены.
ДИЗАЙН ФИТНЕС-ЦЕНТРА В МАГАДАНЕ
.jpg)
Планируете заказать дизайн фитнес-центра у профессиональных дизайнеров в Магадане? – обращайтесь по телефону: 8 800 201-23-74 или оставьте заявку на сайте. Дизайн фитнес-центра «под ключ» гарантируем!
Что такое дизайн фитнес-центра?
Наши клиенты часто задают вопрос: «Что такое дизайн фитнес-центра». Отвечая на данный вопрос, специалисты нашей компании указывают, что дизайн (от англ. design – проектировать, чертить, задумать, а также проект, план, рисунок) – это деятельность по проектированию эстетических свойств промышленных изделий («художественное конструирование»), а также результат этой деятельности (например, в таких словосочетаниях, как «дизайн автомобиля»). Под словом «design» англоязычная литература начала XXI века понимает и стиль, и проект, и проектирование, и собственно «дизайн» – профессиональную деятельность, наряду с архитектурой или инженерным проектированием.
Каковы основные категории объекта дизайна?
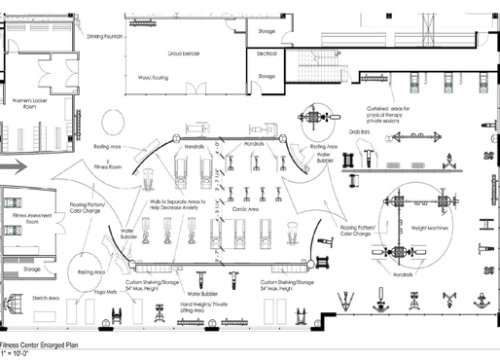
Примеры дизайна помещений фитнес-центра приведены ниже:

Дизайн фитнес-центра. Пример 1

Дизайн фитнес-центра. Пример 2

Дизайн фитнес-центра. Пример 3

Дизайн фитнес-центра. Пример 4

Дизайн фитнес-центра. Пример 5
Какие бывают виды дизайна?
Существует большое количество разновидностей дизайна. Разнообразность определений «дизайнов» точно выразил Томас Мальдонадо: «Различные философии дизайна являются выражением различного отношения к миру. Место, которое мы отводим дизайну в мире, зависит от того, как мы понимаем этот мир…». Итак, приводим основные виды дизайна:
Как видим, существует большое количество разновидностей дизайна. Каждый из указанных видов дизайна предназначен для решения задач в определенной сфере. Однако существует дизайн, который не заменим в бизнесе. Речь идет о дизайне интерьера фитнес-центра, а также помещений клуба: внешних зон (парковки фитнес-центра, фасада здания), а также внутренних зон фитнес-центра (помещения для администрации, спортивных зон для посетителей, гардероба, комнаты отдыха работников, помещения торгово-бытового обслуживания и других помещений фитнес-центра.
В настоящее информационное время эффективный бизнес немыслим без удобного, эргономичного рабочего пространства. Порой с помощью оригинального интерьера фитнес-центра бизнесмену удается произвести положительное впечатление на посетителей и гостей фитнес-центра, привлечь новых клиентов, повысить доход компании. Можно сделать вывод, что с помощью престижного интерьера фитнес-центра руководство компании может повысить прибыльность собственного предприятия, а работники – увеличить производительность труда благодаря эргономичным рабочим местам.

Сколько стоит оформление фитнес-центра в фирменном стиле в Магадане?
Стоимость оформления фитнес-центра в корпоративном стиле в Магадане не является фиксированной. Цены вариативны и зависят от различных факторов. Большое влияние на ценовую политику оказывают:
Дополнительно необходимо отметить, что размеры помещений, количество дизайн-макетов, срочность заказа являются основными факторами, влияющими на стоимость дизайна фитнес-центра в Магадане. Вместе с тем, в нашей компании действуют прогрессивные скидки, позволяющие компаниям даже с небольшим бюджетом заказывать интерьер фитнес-центра в нашей дизайн-студии.
Можно заключить, что разработка оригинальных художественных элементов для помещений фитнес-центра в Магадане и Магаданской области стоит недорого. Денежные средства, вложенные в разработку оригинального дизайна интерьера, окупаются быстро, а высокая эффективность профессионального дизайна помещений фитнес-центра способствует положительной оценке посетителей, и, как следствие, приводит к увеличению потока клиентов и повышению доходности бизнеса.
Планируя разработку фирменного стиля помещений фитнес-центра, руководитель компании, зачастую, во главу угла ставит именно финансовый аспект. Поэтому стоимость дизайна интерьера фитнес-центра в Магадане является важным вопросом. Для получения коммерческого предложения об условиях и ценах профессионального дизайна интерьера фитнес-центра в Магадане необходимо предоставить следующую информацию:
Предоставление указанной выше информации является необходимым условием для получения ценового предложения (прайса) по разработке фирменного стиля фитнес-центра. После получения указанной информации наши менеджеры смогут подготовить коммерческое предложение с учетом ваших целей и задач.

Услуги по разработке дизайна интерьера фитнес-центра в Магадане
Компания «Фасад Медиа Групп» разрабатывает дизайн фитнес-центра в Магадане на профессиональной основе. Мы оказываем следующий перечень услуг:
Как можно видеть, наша компания оказывает полный перечень услуг по разработке интерьера фитнес-центра в Магадане. Благодаря большому опыту работы и профессионализму наших дизайнеров, мы качественно оказываем услуги, а работы всегда выполняем в полном объеме и в установленный срок.

Сроки выполнения работ по разработке дизайна интерьера фитнес-центра в Магадане
Срок разработки дизайна интерьера фитнес-центра является принципиальным моментом для предпринимателей, поскольку чем быстрее фитнес-центр начнет работу в красивом, органичном и удобном помещении, тем быстрее посетителям можно будет начать тренировки, а работники смогут быстрее приступить к исполнению своих обязанностей в красивом и эргономичном помещении. Зачастую, наши клиенты спрашивают: «Каков минимальный срок изготовления дизайн-проекта интерьера фитнес-центра?». Отвечая на данный вопрос, можно отметить, что минимальный срок выполнения работ по разработке дизайн-проекта фитнес-центра в Магадане составляет 3 рабочих дня. Что касается максимального срока выполнения работ, то он рассчитывается индивидуально исходя из вида и размеров фитнес-центра, количества помещений фитнес-центра, срочности заказа, сезонности, а также наличия свободных трудовых ресурсов.
Разработку дизайна фитнес-центра можно разделить на несколько этапов:
Несмотря на то, что минимальный срок подготовки дизайн-проекта фитнес-центра составляет 3 рабочих дня, в некоторых случаях указанный срок может быть продолжительным. Для получения более подробной информации по данному вопросу, обращайтесь к специалистам нашей компании. Будем рады помочь.

Плюсы профессионального дизайна помещений фитнес-центра в Магадане
Профессиональный дизайн фитнес-центра в Магадане пользуется спросом среди представителей бизнеса. Интерьер фитнес-центра, выполненный профессиональным дизайнером, свидетельствует о престиже фитнес-центра, а посетителям сообщает о том, что руководство заботится о статусе заведения, дорожит деловой репутацией и ответственно подходит к ведению дел.
Работники фитнес-центра, находясь в удобном, эргономичном рабочем пространстве, выполняют свои обязанности с большей отдачей и повышенной работоспособностью, дорожат своей должностью и приносят фитнес-центру большую прибыль. Интерьер фитнес-центра, разработанный профессиональным дизайнером, является эффективным и выгодным решением для формирования положительного отношения к бренду заведения у посетителей.
Профессионально изготовленные интерьеры помещений фитнес-центра с качественным дизайном сочетают в себе преимущества, которые позволяют коллективу фитнес-центра наиболее продуктивно выполнять возложенные на него обязанности.
Итак, стоит ли тратить денежные средства на разработку интерьера фитнес-центра профессиональным дизайнером? На данный вопрос следует дать положительный ответ. Назовем некоторые плюсы оформления фитнес-центра в фирменном стиле:
Как видно, фитнес-центр, интерьер которого выполнен профессиональным дизайнером, обладает целым набором положительных черт, которые помогают руководству добиваться еще больших результатов на поприще бизнеса.

Способы оплаты работ по разработке дизайн-проектов помещений фитнес-центра в Магадане
Рекламно-производственная компания «Фасад Медиа Групп» предлагает своим клиентам следующие способы оплаты работ по разработке дизайн-проектов помещений фитнес-центра:
Внимание! Мы работаем по 100% предоплате. После поступления денежных средств начинается процесс изготовления дизайна фитнес-центра. Днем поступления оплаты считается день зачисления денежных средств на расчетный счет ООО «Фасад Медиа Групп».
| Вид услуги | Сроки оказания услуг | Стоимость | Оплата | Налог | Отчет |
|---|
ПРЕИМУЩЕСТВА ДИЗАЙНА ИНТЕРЬЕРА ФИТНЕС-ЦЕНТРА

Престиж фитнес-центра
Престиж (фр. prestige – авторитет, уважение) – это положительная оценка или мнение окружающих людей о том или ином явлении, человеке, организации. Что дает престиж? Имея положительную оценку от окружающих людей, можно с легкостью завоевать их одобрение и доверительное отношение.
В сфере бизнеса данное обстоятельство дорого ценится. Существуют различные способы, чтобы завоевать доверие людей. Один из них – это продемонстрировать красивый интерьер рабочего пространства компании. Оригинальный дизайн интерьера фитнес-центра способен произвести впечатление на посетителей. Фитнес-центр, интерьер которого представляет собой удобное, эргономичное рабочее пространство, разработанное профессиональной дизайн-студией, выгодно отличает заведение от конкурентов, а также свидетельствует о том, что руководство фитнес-центра ответственно подходит к ведению дел.
Да, фитнес-центр, интерьер которого разработан профессиональными дизайнерами, отличающийся продуманными техническими и эргономичными решениями, – это удовольствие не из дешевых. Однако, он способен заявить бизнес-партнерам, клиентам и посетителям, в том числе, о стабильном финансовом положении вашего бизнеса, о положительной динамике роста доходов вашей организации, успехе в ведении дел.
Таким образом, дизайнерски оформляя интерьер фитнес-центра, вы заявите окружающим, что вам можно доверять, с вами можно иметь дело, у вас хорошая репутация и вы серьезно настроены на развитие собственной компании и повышению уровня ее престижа. Отношения с престижной и устойчивой компанией вселяют в людей уверенность и уважение, дают чувство спокойствия и защищенности. Формирование положительной репутации вашей компании – это инвестиция в ваше успешное будущее. Ничто не стоит так дорого, как положительный имидж. Люди, занимающиеся бизнесом, знают это не понаслышке.
Повышение работоспособности сотрудников
Многие работодатели задумываются над вопросом: как сделать труд работников более продуктивным? При попытке решить данную проблему каждый работодатель сталкивался с понятием «работоспособность». Итак, что же такое «работоспособность»?
Работоспособность – это потенциальная возможность индивида, в нашем случае работника, выполнять целесообразную деятельность на заданном уровне эффективности в течение определенного времени. Работоспособность зависит от внешних условий деятельности и психофизиологических ресурсов работника.
Существует большое количество способов добиться того, чтобы работник качественно и на высоком профессиональном уровне выполнял возложенные на него обязанности. Однако иногда сотруднику компании сложно трудиться с высокой отдачей по объективным, не зависящим от него причинам. Одной из таких причин может быть низкая эргономичность помещений фитнес-центра.
Что такое эргономичность? Под эргономичностью в самом широком смысле понимается удобство, пригодность использования какого-либо предмета или продукта. Под эргономичностью в нашем случае понимается удобство фитнес-центра, продуманность рабочих зон, правильное расположение мебели и оргтехники, а также пригодность фитнес-центра к исполнению работниками возложенных на них обязанностей. Можно сделать вывод, что, чем больше удобства в фитнес-центре, тем легче работникам трудиться со 100% отдачей. Следовательно, интерьер фитнес-центра, продуманный профессиональным дизайнером, способен повысить производительность труда и работоспособность сотрудников.
Экономия рабочего пространства и времени
Не секрет, что каждая компания, организация или предприятие независимо от размеров капитала и объема занимаемого рынка стремиться к экономии. Причем под экономией понимается не только экономия финансовых ресурсов или капитала, но и экономия времени, трудовых ресурсов, пространства фитнес-центра, занимаемого в здании. Проведение грамотной экономики и хорошо организованная экономия ресурсов, зачастую, позволяет руководству фитнес-центра снизить расходы, а сэкономленные денежные средства направить на новые проекты.
Возникает вопрос, что может позволить руководству фитнес-центра сэкономить? Ответ прост: интерьер фитнес-центра, выполненный по дизайн-проекту. И правда, удобное, эргономичное рабочее пространство позволяет значительно экономить время, денежные средства и пространство занимаемого фитнес-центра. Продуманные технические и дизайнерские решения позволяют руководству организации осуществлять слаженное управление рабочим коллективом, работникам – выполнять возложенные на них обязанности со 100% эффективностью, бухгалтеру – экономить для руководства средства, которые были бы потрачены на лишнюю мебель, оргтехнику и другие ненужные материальные ресурсы.
Итак, можно сделать вывод, что интерьер фитнес-центра, разработанный профессиональным дизайнером, позволяет экономить время и деньги для компании. Следовательно, фитнес-центры, которые стремятся к повышению прибыли, просто обязаны иметь интерьер, разработанный профессиональной дизайн-студией.
СОВЕТЫ ПО ОФОРМЛЕНИЮ ИНТЕРЬЕРА ФИТНЕС-ЦЕНТРА
Подготовьте или закажите дизайн-проект
Наши клиенты часто задают нашим менеджерам вопрос: «Что такое дизайн фитнес-центра». Отвечая на данный вопрос, специалисты нашей компании указывают, что дизайн (от англ. design – проектировать, чертить, задумать, а также проект, план, рисунок) – это деятельность по проектированию эстетических свойств промышленных изделий («художественное конструирование»), а также результат этой деятельности (например, в таких словосочетаниях, как «дизайн автомобиля»). Под словом «design» англоязычная литература начала XXI века понимает и стиль, и проект, и проектирование, и собственно «дизайн» – профессиональную деятельность, наряду с архитектурой или инженерным проектированием.
Для того, чтобы оформить интерьер фитнес-центра профессионально, красиво и эргономично, необходимо изготовить дизайн-проект. Подготовкой дизайн-проекта могут заняться как дизайнеры компании, так и сторонние дизайн-студии. Вместе с тем, лучше доверить разработку интерьера фитнес-центра профессионалам, которые знают все нюансы и тонкости разработки и проектирования оригинальных художественных элементов интерьера фитнес-центра.
Закупите качественные отделочные материалы
После того, как подготовлен, разработан дизайн-проект фитнес-центра, необходимо закупить качественные отделочные материалы. Если у руководства заведения еще не было опыта по отделке помещений фитнес-центра, то данную задачу лучше доверить либо дизайнеру, который разрабатывал проект фитнес-центра, либо профессиональным рабочим, которые впоследствии будут воплощать дизайнерские решения по оформлению помещений фитнес-центра в жизнь.
При закупке отделочных материалов для фитнес-центра вам необходимо будет решить ряд задач:
- какое количество отделочных материалов вам понадобиться;
- материалы какого производителя закупить;
- сколько денежных средств выделить на закупку.
При закупке отделочных материалов лучше советоваться с дизайнером, который готовил дизайн-проект. Как правило, дизайнеры, при разработке интерьера фитнес-центра, уже четко представляют, какие отделочные материалы должны быть применены при воплощении идеи в жизнь.
Подберите ответственную бригаду рабочих
Одним из важных этапов при воплощении дизайнерского проекта фитнес-центра в жизнь является этап подбора строительной бригады. Не секрет, что среди отделочников, зачастую, можно встретить дилетантов. Итак, по каким критериям необходимо выбирать рабочих? Даем несколько советов:
- готовность к выполнению работ: строительная бригада должна быть свободна от иных заказов, и должна быть готова приступить к выполнению вашего немедленно;
- адекватное поведение: все строители должны быть адекватными, непьющими, работоспособными;
- умение читать чертежи и разговаривать на языке заказчика: ответственный работник должен понимать, что от него требуется в рамках реализации дизайн-проекта помещений фитнес-центра. Как минимум, рабочий должен понимать язык, на котором говорит заказчик и обладать элементарными навыками разбора чертежей;
- опрятность: каждый строитель, который будет проводить отделку фитнес-центра по разработанному дизайн-проекту должен не только выглядеть опрятно, но и производить работы чисто или, по крайней мере, соблюдая максимальную опрятность.
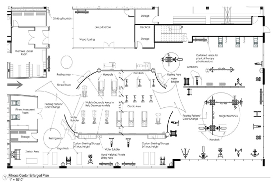
Что такое дизайн фитнес-центра?
Наши клиенты часто задают нашим дизайнерам вопрос: «Что такое дизайн фитнес-центра». Отвечая на данный вопрос, специалисты нашей компании указывают, что дизайн (от англ. design – проектировать, чертить, задумать, а также проект, план, рисунок) – это деятельность по проектированию эстетических свойств промышленных изделий («художественное конструирование»), а также результат этой деятельности (например, в таких словосочетаниях, как «дизайн автомобиля»). Под словом «design» англоязычная литература начала XXI века понимает и стиль, и проект, и проектирование, и собственно «дизайн» – профессиональную деятельность, наряду с архитектурой или инженерным проектированием.
Каковы основные категории объекта дизайна?
Примеры дизайна помещений фитнес-центра приведены ниже:

Дизайн фитнес-центра. Пример 1

Дизайн фитнес-центра. Пример 2

Дизайн фитнес-центра. Пример 3

Дизайн фитнес-центра. Пример 4

Дизайн фитнес-центра. Пример 5
Какие бывают виды дизайна?
Существует большое количество разновидностей дизайна. Разнообразность определений «дизайнов» точно выразил Томас Мальдонадо: «Различные философии дизайна являются выражением различного отношения к миру. Место, которое мы отводим дизайну в мире, зависит от того, как мы понимаем этот мир…». Итак, приводим основные виды дизайна:
Как видим, существует большое количество разновидностей дизайна. Каждый из указанных видов дизайна предназначен для решения задач в определенной сфере. Однако существует дизайн, который не заменим в бизнесе. Речь идет о дизайне интерьера фитнес-центра, а также помещений клуба: внешних зон (парковки фитнес-центра, фасада здания), а также внутренних зон фитнес-центра (помещения для администрации, спортивных зон для посетителей, гардероба, комнаты отдыха работников, помещения торгово-бытового обслуживания и других помещений фитнес-центра.
В настоящее информационное время эффективный бизнес немыслим без удобного, эргономичного рабочего пространства. Порой с помощью оригинального интерьера фитнес-центра бизнесмену удается произвести положительное впечатление на посетителей и гостей фитнес-центра, привлечь новых клиентов, повысить доход компании. Можно сделать вывод, что с помощью престижного интерьера фитнес-центра руководство компании может повысить прибыльность собственного предприятия, а работники – увеличить производительность труда благодаря эргономичным рабочим местам.
Для чего нужно дизайнерски оформлять интерьер фитнес-центра?
Потребность бизнеса в профессиональном дизайне фитнес-центра велика и обусловлена целым рядом факторов. Возникает вопрос: почему бизнес уделяет большое внимание разработке фирменного стиля помещений фитнес-центра? Необходимо отметить, что профессиональное оформление помещений фитнес-центра используется в нескольких целях, при этом главными являются:
1) дизайнерские фитнес-центры – элемент привлечения внимания;
2) дизайнерские фитнес-центры – часть имиджа компании;
3) дизайнерские фитнес-центры – помощь в конкуренции.
В первом случае, фитнес-центры, оформленные профессиональным дизайнером, используются, чтобы помочь предпринимателям обратить внимание потенциальных посетителей на собственный бизнес. Не секрет, что каждый предприниматель желает быть более заметным для клиентов. Данная потребность особенно значима в условиях, когда город пестрит неоновыми вывесками, рекламными конструкциями, красивыми фасадам зданий и сооружений. Если не использовать дизайнерские интерьеры фитнес-центра, то потенциальный клиент может и не обратить внимание на ваш спортивный клуб. Вы для него будете одним из многих бизнесов, которые не заботятся об имидже компании и являются «серыми мышками» бизнес-сообщества. Зачастую, отсутствие интерьера фитнес-центра, оформленного в фирменном стиле, может привести к потере клиентов и, как следствие, потере прибыли, что всегда негативно сказывается на эффективности бизнеса.
Во втором случае дизайнерские фитнес-центры могут использоваться как элемент имиджа, позволяющий сформировать положительный образ вашему бизнесу. Следовательно, дизайнерские фитнес-центры выступают в качестве способа продвижения бренда компании. Корпоративное оформление фитнес-центра позволяет выделить ваше заведение среди аналогичных и продемонстрировать устойчивое развитие вашего бизнеса.
И наконец, дизайнерские фитнес-центры могут помочь в борьбе за клиентов, т.е. могут использоваться как преимущество в конкурентной борьбе. Данное обстоятельство играет главную роль в условиях повышенной конкуренции. Зачастую, в городской среде посетителям нет разницы, в каком фитнес-центре тренироваться. Следовательно, бизнесмену необходимо выделить именно свой бизнес и привлечь, таким образом, посетителей именно в свой фитнес-центр. Для этого предприниматели зачастую используют дизайнерское оформление помещений фитнес-центра, выполненное по индивидуальному эскизу, что позволит обратить внимание посетителей.
Из изложенного выше можно сделать вывод, что дизайнерские фитнес-центры являются незаменимым решением, которое используется для привлечения посетителей, способствует популяризации бизнеса, что приводит к повышению доходности.

Что такое дизайн-проектирование помещений фитнес-центра?
Под дизайн-проектированием помещений фитнес-центра принято понимать процесс определения архитектуры, компонентов, интерфейсов и других характеристик дизайн-макета интерьера фитнес-центра. Результатом дизайн-проектирования является дизайн-проект – целостная совокупность моделей, свойств или характеристик, описанных в форме, пригодной для дизайнерского оформления фитнес-центра.
Дизайн-проектирование помещений фитнес-центра представляет собой целенаправленную деятельность, которая обладает последовательностью процедур, ведущих к достижению эффективных решений. В настоящее время предложен ряд структур и алгоритмов дизайн-проектирования, совпадающих в основных чертах и различающихся только в содержании или названии отдельных этапов.
Методы дизайн-проектирования дизайна интерьера фитнес-центра
К методам дизайн-проектирования дизайна интерьера фитнес-центра относятся следующие:
1) Эвристические методы:
2) Экспериментальные методы:
3) Формализованные методы
Каждый из указанных методов должен использоваться в системе остальных подходов для того, чтобы процесс дизайн-проектирования интерьера фитнес-центра смог завершится в срок и с высокой степенью результативности.
Этапы дизайн-проектирования интерьера фитнес-центра
Выше указывалось, что дизайн-проектирование помещений фитнес-центра – это процесс, состоящий из целого ряда логически последовательных действий, которые представляют собой систему и направлены на определенный результат, а именно: создание дизайн-проекта будущего фитнес-центра.
Процесс дизайн-проектирования рабочего пространства фитнес-центра разбивается на несколько этапов. К основным этапам дизайн-проектирования фирменного стиля относятся:
Как можно видеть, наша компания оказывает полный перечень услуг по разработке интерьера фитнес-центра в Магадане. Благодаря большому опыту работы и профессионализму наших дизайнеров, мы качественно оказываем услуги, а работы всегда выполняем в полном объеме и в установленный срок.

Стоимость дизайн-проектирования фитнес-центра компании
Зачастую клиенты нашей компании задают вопрос о том, сколько стоит дизайн-проектирование помещений фитнес-центра? Отвечая на данный вопрос, можем привести следующие цифры:
Обращаем внимание, что указанные суммы не являются публичной офертой и рассчитываются в каждом случае индивидуально. Процесс дизайн-проектирования фитнес-центра является уникальным и не рутинным мероприятием, которое требует индивидуального подхода. Поэтому, для получения более точной информации о том, сколько стоит изготовить дизайнерский макет интерьера фитнес-центра, необходимо обращаться к специалистам нашей дизайн-студии. Будем рады сотрудничеству.
Уважаемые друзья! За разработкой дизайн-проекта эргономичного интерьера фитнес-центра обращайтесь в дизайн-студию «Фасад Медиа Групп». Высокий уровень сервиса и низкие цены гарантируем. Мы все сделаем сами: разработка концепции, изготовление дизайн-макета, корректировка, внесение изменений и воплощение в жизнь самых смелых решений.
Обращайтесь 88002012374@mail.ru или 8 800 201-23-74
Какие требования предъявляются к дизайн-макетам?
Приводим общие требования к дизайн-макетам:
Внимание! Заказчик самостоятельно несет ответственность за допущенные орфографические, пунктуационные, стилистические ошибки.Макет согласован только в том случае, если от вас поступит сообщение в письменном виде на электронную почту о факте проверки вами макета и его одобрения.
Можно ли заказать изготовление дизайн-макета в ООО «Фасад Медиа Групп»?
Макет рекламы можно заказать у нас. Мы имеем большой опыт по изготовлению дизайн-макетов. Наши дизайнеры являются профессионалами и обладают большим опытом работы. Ниже приведены условия по дизайну макетов для фитнес-центра:
|
Услуга |
Кол-во |
Срок работы |
Цена |
|
Дизайн макета |
1 шт. |
от 1 до 2 дней |
от 500 руб. |
|
Коррекция готовых макетов |
1 шт. |
1 день |
от 300 руб. |
|
Отрисовка схем |
1 шт. |
от 1 до 3 дней |
от 350 руб. |
|
Обработка фотографий, рисунков, эскизов и т.д. |
1 шт. |
от 1 до 3 дней |
от 150 руб. |
|
Коррекция текста |
1 шт. |
1 день |
от 200 руб. |
|
Ретушь, цветокоррекция, замена фона |
1 шт. |
1 день |
от 450 руб. |
|
Коллажирование и фотомонтаж |
1 шт. |
1 день |
от 900 руб. |
|
Привязать макет к объекту, фасаду (визуализация) |
1 шт. |
1 день |
от 150 руб. |
|
Изменение размера макета |
1 шт. |
1 день |
от 250 руб. |
*Цены не являются публичной офертой.
Какая информация предоставляется заказчиком для создания дизайн-макета?
Для создания дизайн-макета нашими дизайнерами от вас требуется:
Наши дизайнеры предоставят несколько вариантов макета на выбор. Правки вносим до согласования с вами, но не более 3 раз. При проверке готового макета, просьба:
Как сделать дизайн-макет самостоятельно?
Для того, чтобы сделать дизайн-макет, не обязательно обращаться к профессионалам. Макет можно сделать самостоятельно. Сейчас в сети Интернет появилось большое количество онлайн-редакторов, которые предлагают полный набор функций по изготовлению, дизайну макетов. Вот один из них: редактор. Также можно приобрести специальные программы, которые используются профессионалами для создания макетов. К таким программам относятся, в частности Adobe InDesign, Adobe Illustrator, Adobe Photoshop. Однако если вы хотите, чтобы макет был качественным, то лучше воспользоваться услугами профессиональных дизайнеров, тем более, что стоимость работ не так высока.
Уважаемые друзья! За разработкой дизайн-проекта эргономичного интерьера фитнес-центра обращайтесь в дизайн-студию «Фасад Медиа Групп». Высокий уровень сервиса и низкие цены гарантируем. Мы все сделаем сами: разработка концепции, изготовление дизайн-макета, корректировка, внесение изменений и воплощение в жизнь самых смелых решений.
Обращайтесь 88002012374@mail.ru или 8 800 201-23-74
Каковы сроки разработки дизайн-проекта фитнес-центра?
Срок разработки дизайна интерьера фитнес-центра является принципиальным моментом для предпринимателей, поскольку чем быстрее фитнес-центр начнет работу в красивом, органичном и удобном помещении, тем быстрее посетителям можно будет начать тренировки, а работники смогут быстрее приступить к исполнению своих обязанностей в красивом и эргономичном помещении. Зачастую наши клиенты спрашивают: «Каков минимальный срок изготовления дизайн-проекта интерьера фитнес-центра?». Отвечая на данный вопрос, можно отметить, что минимальный срок выполнения работ по разработке дизайн-проекта фитнес-центра в Магадане составляет 3 рабочих дня. Что касается максимального срока выполнения работ, то он рассчитывается индивидуально исходя из вида и размеров фитнес-центра, количества помещений фитнес-центра, срочности заказа, сезонности, а также наличия свободных трудовых ресурсов.
Разработку дизайна фитнес-центра можно разделить на несколько этапов:
Несмотря на то, что минимальный срок подготовки дизайн-проекта фитнес-центра составляет 3 рабочих дня, в некоторых случаях указанный срок может быть продолжительным. Для получения более подробной информации по данному вопросу, обращайтесь к специалистам нашей компании. Будем рады помочь.
Уважаемые друзья! За разработкой дизайн-проекта эргономичного интерьера фитнес-центра обращайтесь в дизайн-студию «Фасад Медиа Групп». Высокий уровень сервиса и низкие цены гарантируем. Мы все сделаем сами: разработка концепции, изготовление дизайн-макета, корректировка, внесение изменений и воплощение в жизнь самых смелых решений.
Обращайтесь 88002012374@mail.ru или 8 800 201-23-74
Сколько стоит оформление фитнес-центра в фирменном стиле в Магадане?
Стоимость оформления фитнес-центра в корпоративном стиле в Магадане не является фиксированной. Цены вариативны и зависят от различных факторов. Большое влияние на ценовую политику оказывают:
Дополнительно необходимо отметить, что размеры помещений, количество дизайн-макетов, срочность заказа являются основными факторами, влияющими на стоимость дизайна фитнес-центра в Магадане. Вместе с тем, в нашей компании действуют прогрессивные скидки, позволяющие компаниям даже с небольшим бюджетом заказывать интерьер фитнес-центра в нашей дизайн-студии.
Можно заключить, что разработка оригинальных художественных элементов для помещений фитнес-центра в Магадане и Магаданской области стоит недорого. Денежные средства, вложенные в разработку оригинального дизайна интерьера, окупаются быстро, а высокая эффективность профессионального дизайна помещений фитнес-центра способствует положительной оценке посетителей, и, как следствие, приводит к увеличению потока клиентов и повышению доходности бизнеса.
Планируя разработку фирменного стиля помещений фитнес-центра, руководитель компании, зачастую, во главу угла ставит именно финансовый аспект. Поэтому стоимость дизайна интерьера фитнес-центра в Магадане является важным вопросом. Для получения коммерческого предложения об условиях и ценах профессионального дизайна интерьера фитнес-центра в Магадане необходимо предоставить следующую информацию:
Предоставление указанной выше информации является необходимым условием для получения ценового предложения (прайса) по разработке фирменного стиля фитнес-центра. После получения указанной информации наши менеджеры смогут подготовить коммерческое предложение с учетом ваших целей и задач.
Уважаемые друзья! За разработкой дизайн-проекта эргономичного интерьера фитнес-центра обращайтесь в дизайн-студию «Фасад Медиа Групп». Высокий уровень сервиса и низкие цены гарантируем. Мы все сделаем сами: разработка концепции, изготовление дизайн-макета, корректировка, внесение изменений и воплощение в жизнь самых смелых решений.
Обращайтесь 88002012374@mail.ru или 8 800 201-23-74
Рекламное агентство «Фасад Медиа Групп» предлагает гибкие условия изготовления дизайнерских интерьеров для фитнес-центров в Магадане и Магаданской области, выгодные цены.
Примеры наших работ по изготовлению дизайнерских интерьеров для фитнес-центров представлены ниже:
![]() |
![]() |
![]() |
Уважаемые друзья! За разработкой дизайн-проекта эргономичного интерьера фитнес-центра обращайтесь в дизайн-студию «Фасад Медиа Групп». Высокий уровень сервиса и низкие цены гарантируем. Мы все сделаем сами: разработка концепции, изготовление дизайн-макета, корректировка, внесение изменений и воплощение в жизнь самых смелых решений.
Обращайтесь 88002012374@mail.ru или 8 800 201-23-74
Принимаем заявку
Позвоните или оставьте
заявку на сайте
Предлагаем услуги
Анализируем проблему
и предлагаем решение
Заключаем договор
Приходим к соглашению и подписываем документы
Оказываем услуги
Выполняем обязательства в полном объеме и в срок
Многие рекламные конструкции находятся в управлении нашего рекламного агентства. Это дает нам возможность устанавливать разумные цены без лишних комиссий и условий.
Наружная реклама
Реклама на радио
Реклама на телевидении
Реклама в интернете и печатных СМИ
Реклама на/в транспорте
Реклама в помещениях
Изготовление рекламы
Фасад Медиа Групп – это высокотехнологичное рекламное агентство, талантливый и креативный коллектив которого воплощает в жизнь сложные, смелые и интересные рекламные проекты.
На сайте используются файлы Cookie и Рекомендательные технологии. Продолжив работу с сайтом, Вы соглашаетесь с Политикой обработки персональных данных и правилами пользования сайтом